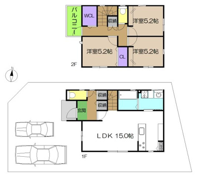
建築条件付き宅地 高知市石立町 6号地
物件情報
周辺施設
建築条件付き宅地 高知市石立町 6号地 の物件概要
【売地】※地図上に表示される物件の位置は付近住所に所在することを表すものであり、実際の物件所在地とは異なる場合がございます。
高知市の不動産売却|タクシン不動産 > 物件一覧 > 建築条件付き宅地 高知市石立町 6号地
建築条件付き宅地 高知市石立町 6号地
物件情報
周辺施設
建築条件付き宅地 高知市石立町 6号地 の物件概要
【売地】※地図上に表示される物件の位置は付近住所に所在することを表すものであり、実際の物件所在地とは異なる場合がございます。

高知市の町名から探す
高知市にある駅から探す