高知市の不動産売却|タクシン不動産 > 物件一覧 > 売ビル 高知市はりまや町3丁目 > 物件詳細
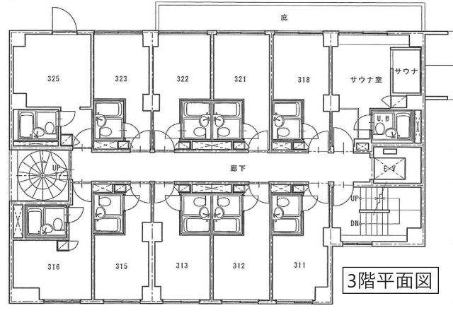
以前はビジネスホテルとして使用していました。追手筋入口へ徒歩5分と観光客にとって好立地です。客室は56室あります。











(※元利均等方式 金利5.00%まで ※返済年数5~50年まで入力できます)
(※ボーナスは年2回で計算しています。1000万円まで入力できます)
(※物件購入時、その他諸費用が発生する場合がございます)
| 所在地 | 高知県高知市はりまや町3丁目 | ||
|---|---|---|---|
| 交通 | |||
| 間取り/詳細 | - | 建物面積(坪数) | 1323.70㎡(400.41坪) |
| 価格 | 1億4,000万円 | 管理費 | - |
| 駐車場/月額料金 | 有/- | ||
| 土地権利 | 所有権 | 土地面積(坪数) | 304.35㎡(92.06坪) |
| 国土法届出要否 | 不要 | 接道状況 | 一方(北 公道 6.1m 間口 25.0m) |
| 地目/地勢 | 宅地/- | 棟総戸数/販売戸数 | -/- |
| 都市計画 | 市街化区域 | 用途地域 | 商業 |
| 建ぺい率 | 80% | 容積率 | 400% |
| その他の法令上の制限 | - | ||
| 種別/構造 | ビル/鉄筋コンクリート | 向き | - |
| 築年月(築年数) | 1977年 4月 (築48年) | 所在階/階建 | -/8階建 |
| 管理組合有無 | - | 管理形態 | - |
| 管理員の勤務形態 | - | 管理会社 | - |
| 取引態様 | 一般媒介 | 現況/引渡し | 空家/相談 |
| 物件番号 | 83544058 | 取引条件の有効期限 | 2026年01月29日 |
| 設備条件 |
|
||
| 取扱会社 |
|
||
| QRコード |
このQRコードを読み取ることで、スマホでも物件情報を確認できます。 |
||
※地図上に表示される物件の位置は付近住所に所在することを表すものであり、実際の物件所在地とは異なる場合がございます。
高知市の町名から探す
高知市にある駅から探す
売ビル 高知市はりまや町3丁目周辺の駅から探す